| NIVEAU | PIÈCE | SURFACE |
Prix 235 000 € *
Maison vigneronne
SERVIAN (34290)
Ref 345711648
Ref S191
- 93 m²
- 5 pièce(s)
- 3 chambre(s)
- 665 m²
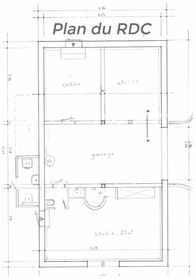
Maison 4 faces sur un terrain de 665 m² datant de 1954 entièrement rénovée et équipée comprenant en rez-de-chaussée un studio équipée d'environ 23m², un garage, un cellier, une buanderie, un WC, ainsi qu'une cuisine de jardin.
Le premier étage se compose d'un appartement T3 d’une surface de 70m² avec 2 chambres, un salon-séjour, une SDB et un WC. Cette villa est idéalement placée dans un endroit calme et agréable dans Servian. Le terrain est très ensoleillé et permet de profiter au mieux de la cuisine d'été et du barbecue en fonte.
Possibilité d'avoir un terrain de 420m² - pour plus de renseignements contactez le 04 67 26 33 71.
Les informations sur les risques auxquels ce bien est exposé sont disponibles sur le site Géorisques
Notre barème d'honoraires
* Honoraires charge vendeur.
Ce bien ne figure plus au catalogue car il a été vendu.
Diagnostics de performance énergétique
Voir le descriptif des pièces
À proximité de ce bien ...
Découvrez nos biens similaires ...
Maison
CASTELNAU DE GUERS
240 000 €*
Maison et terrain
BEZIERS
230 000 €*
Villa
CREISSAN
248 000 €*
Villa
CAPESTANG
221 000 €*
Villa
CAPESTANG
250 000 €*




























