| NIVEAU | PIÈCE | SURFACE |
Prix 96 000 € *
Remise en pierre
POILHES (34310)
Ref 345392876
Ref 2562
- 154 m²
- 4 pièce(s)
- 3 chambre(s)
- 269 m²
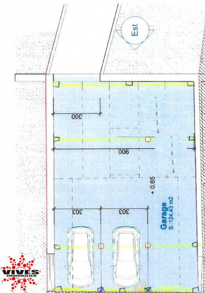
Au calme, à l'abri des regards, grande remise en pierres d'une surface au sol de 124m + jardin d'environ 130m2.
Plan pour projet de réhabilitation en loft de 156m2 composé au niveau -1 d'un immense garage avec portail automatique en fonction.
En rez de jardin un grand séjour salon avec cuisine ouverte, ainsi qu'une chambre et salle d'eau.
Enfin au 1er, 2 chambres supplémentaires ainsi qu'une salle de bain.
Toiture déjà rénovée a neuf par le propriétaire.
Bien déjà raccordé aux divers réseaux.
Devis et renseignements sur demande.
Idéal stockage ou projet de transformation
Les informations sur les risques auxquels ce bien est exposé sont disponibles sur le site Géorisques
Notre barème d'honoraires
* Honoraires charge vendeur.
Ce bien ne figure plus au catalogue car il a été vendu.
Diagnostics de performance énergétique
Voir le descriptif des pièces
À proximité de ce bien ...
Découvrez nos biens similaires ...
Maison à rénover
MONTADY
97 000 €*
Maison à rénover
MONTELS
91 000 €*
Maison de village
MARAUSSAN
89 000 €*
Maison de village
VILLENEUVE LES BEZIERS
98 000 €*
Maison de ville
BEZIERS
100 000 €*














